<
>
Photo-Real Renderings > Blueprints > CNC
[Up to 400% faster than current creative to production ]
Projects: https://www.behance.net/mgs-designs
experiential
retail
Projects: https://www.behance.net/mgs-designs
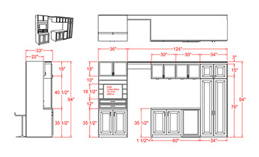
Complex and Technical
3D CAD for accurate drawings, fabrication quality, planning and CGI planning
Projects: https://www.behance.net/mgs-designs
mechanical
hospitality
architectural
Projects: https://www.behance.net/mgs-designs